Bolhó - Eladó Ház
87 m2
22.000 €
348991
Tágas, felújítandó családi ház nagy telekkel Bolhón eladó!
Leírás
Eladó Bolhón egy 87 négyzetméteres, felújítandó családi ház nagy telekkel és számos melléképülettel. Az ingatlan teljes egészében téglából épült, stukatúros födémmel rendelkezik, a padlás betonozott, a tetőt cserép fedi. Jó alapot biztosít egy teljes körű felújításhoz.
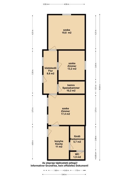
✅ Nettó alapterület: 87 m2, telek mérete: 2477 m2.
✅ A lakóházban három szoba, egy konyha, egy kamra, egy közlekedő, valamint egy tágas fürdőszoba található külön WC helyiséggel.
✅ A fűtés konvektorokkal és fatüzeléses kandallókkal megoldott.
✅ Az összes közmű be van kötve, víz, villany, gáz és csatorna.
✅ A nyílászárók többsége hagyományos fa ablak, két helyiségben már új műanyag ablakok kerültek beépítésre.
✅ Az udvaron garázs, pince, többféle melléképület, tárolók, ólak és füstölő is található.
✅ Az ingatlanhoz fúrt kút tartozik.
✅ Az udvar körbekerített, az első udvar külön leválasztott, az állattartásra használt hátsó udvar szintén külön kerítéssel rendelkezik. A kert hátsó része nincs bekerítve, igény esetén földművelésre akár bérbe is adható.
✅ A telken gyümölcsfák találhatók, alma, szilva, körte, valamint akácfák.
✅ A nagy telek kiváló lehetőséget nyújt gazdálkodásra, állattartásra vagy kertészkedésre.
Az ingatlan remek ár érték arányban vásárolható meg, ideális választás azok számára, akik saját elképzeléseik szerint szeretnének vidéki otthont kialakítani.
Bolhó egy barátságos, nyugodt falu Somogy megyében, a horvát határ közelében. A településen minden alapvető szolgáltatás elérhető: működik élelmiszerbolt, dohánybolt, orvosi rendelő, valamint posta is. Bolhó közvetlen közelében több város is található: Barcs mindössze 20 km-re van, ahol nagyobb üzletek, iskolák, gyógyszertárak, bankok és különböző orvosi rendelések is megtalálhatóak, míg Nagyatád körülbelül 30 km-re fekszik, és szintén minden fontosabb intézménnyel rendelkezik. A település 25 km-es körzetében 3 különböző termálfürdő elérhető. A település a Duna-Dráva Nemzeti Park területén fekszik, a környező erdők a vadászatot kedvelőket vonzzák, míg a horgászatot kedvelők több tavon és a Dráván is hódolhatnak szenvedélyüknek.
Az ingatlan egésze egy helyrajzi számon található, tulajdoni viszonyai rendezettek, a birtkbaadás azonnal lehetséges.
További információkért keressen bátran!
Éva Farkas
+36203450225 (Whatsapp, Viber)
evafarkasimmo@gmail.com
www.evafarkasimmo.com
Kapcsolati adatok
Érdeklődjön az ingatlanról, e-mailben!
Hasonló ingatlanok
Komlósd
Felújított, 93 m2-es családi ház 4469 m2 telekkel Komlósdon elad...